Moradia para Restaurar T4. Matosinhos, Matosinhos e Leça da Palmeira

230.000 €   /  Ref. RMS1003
Vídeos
Imagens
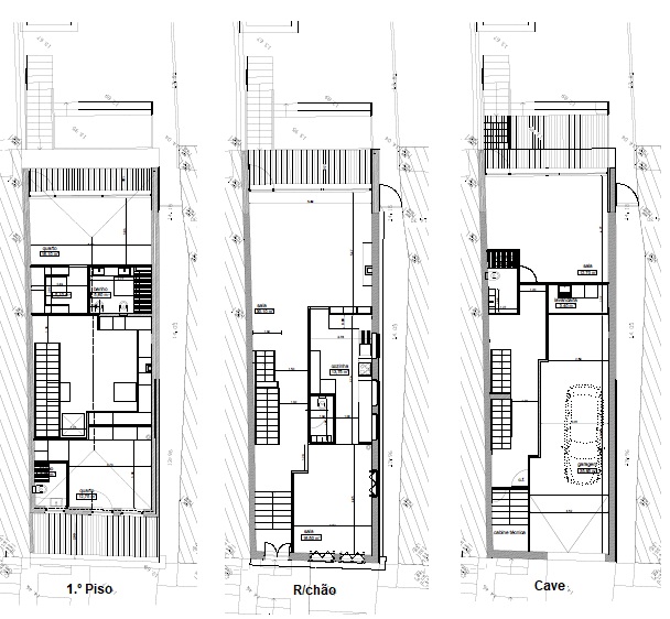
Descrição Casa para reabilitar e ampliar, com projecto aprovado e licenças pagas.
Inserida na ARU (Área de Reabilitação Urbana) de Leça da Palmeira, possibilidade de efectuar a obra com IVA a 6%, isenção de IMT na primeira transação e isenção de IMI de 3 a 5 anos. Possibilidade de financiamento através do IFRRU 2020 (Instrumento financeiro reabilitação e revitalização urbanas).
Depois de concluída, ficará uma casa de 3 pisos, com 270 m2 de area coberta, 3 quartos (suites), sala de estar e sala de jantar, garagem para dois carros, piscina e jardim.
Excelente localização perto da Quinta de Santiago e Quinta da Conceição, optima exposição solar.
Nota: Pode iniciar a construção de imediato.
Objectivo: Venda
Condição: Para remodelar
Tipo: Moradia para Restaurar
Tipologia: T4
Distrito: Porto
Concelho: Matosinhos
Freguesia: Matosinhos e Leça da Palmeira
Classe energética
0
Detalhes
Geral
  • Porta Blindada/Segurança
  • Video Porteiro Cores
  • Arquitetura Contemporânea
Isolamento Térmico/Acústico
  • Estores Blackout
  • Paredes materiais isolantes
  • Vidros Duplos
  • Caixilharias: Aluminio/Aluminio Térmico
  • Janelas "Oscilo-batente"
  • Janelas Velux
  • Janela de Segurança
  • Isolamento Térmico
  • Isolamento Acústico
Extras
  • Varandas
  • Varandas Quartos
  • Varandas Sala
  • Rega Automática
  • Arrumos
Aquecimento Central / Climatização
  • Ar Condicionado (Não Especificado)
  • Caldeira (Não Especificado)
  • Aquecimento Central (Não Especificado)
Conforto e Lazer - Privativo
  • Piscina exterior
  • Piscina (Não Especificado)
Objectivo
  • Habitação
Divisões
   Divisões    Área    Pavimento    Paredes    Tectos    Observações
   
Em redor
Classificação Zona
  • Residencial
  • Residencial cidade
Turístico
  • Centro da cidade
  • Centro Histórico
  • Museu
Infra-estruturas
Geral
  • Garagem fechada
  • Jardim
Conforto e Lazer - Comum
  • Piscina exterior
  • Piscina (Não Especificado)
Domótica
Não existem dados desta categoria.
Energias Renováveis
Aquecimento e Águas
  • Aproveitamento águas pluviais
  • Painéis Solares fixos
Estacionamento 2
Área Terreno m2 250
Área Útil m2 270
Miguel Silva
Miguel Silva 964096245 miguelsilva@verticus.pt

Interessado neste imóvel?

   
  
   
 
x
Warning  O seu navegador está desatualizado, possui falhas de segurança e pode apresentar problemas a exibir este e outros websites. Resolver Agora

Trocando para um navegador mais atual tem várias vantagens:

Segurança
Navegadores atualizados protegem-no melhor contra fraudes, vírus, trojans, phishing, e outras ameaças!

Velocidade
Todos os navegadores da nova geração melhoram a velocidade

Compatibilidade
Sites que utilizam novas tecnologias serão melhor apresentados

Conforto & experiência mais rica
Com novas funcionalidades, extensões e melhor personalização, você terá uma melhor experiência ao navegar na web

Atualizar é fácil, toma poucos minutos e é totalmente gratuito. Navegadores desatualizados são uma ameaça à segurança e estão dificultando o avanço da web por causa das suas limitações e muitos problemas de funcionamento.

"Eu não tenho permissão para atualizar meu navegador"
Se você está em um computador, que é mantido por um administrador e você não pode instalar um novo navegador, fale com seu administrador sobre isso. Se você não pode mudar de navegador por causa de problemas de compatibilidade, tente instalar um segundo navegador, e manter o antigo para garantir a compatibilidade.
Fechar
Ao navegar neste site, está a concordar com o uso de cookies.  Mais informações Aceitar