Terreno, Vila Nova de Gaia, Canidelo

350.000 €   /  Ref. QMG29 Twin Villas
Vídeos
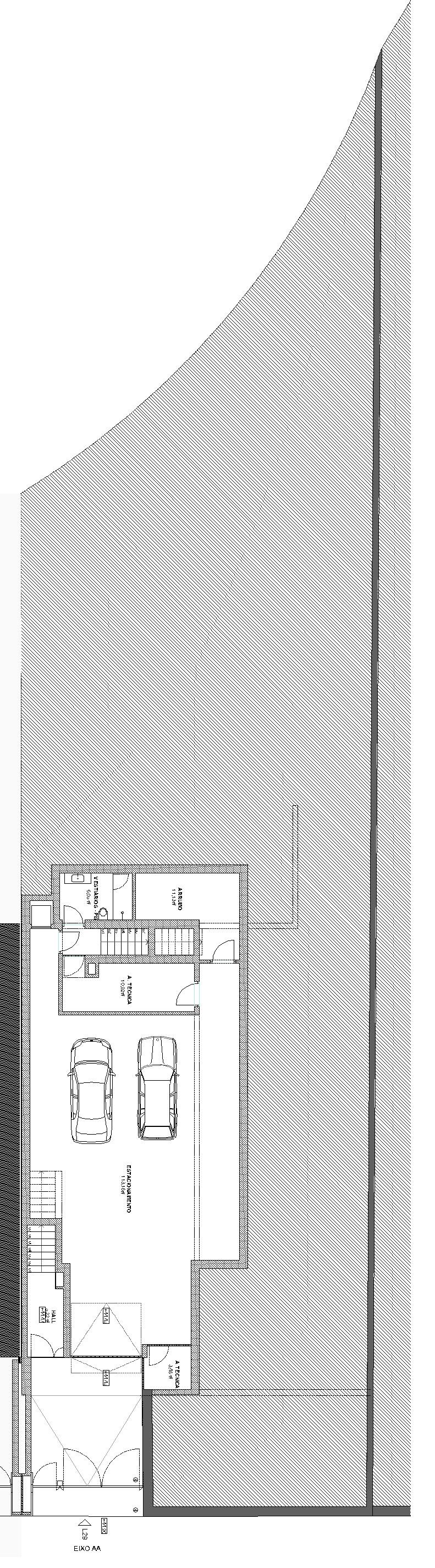
Imagens
Descrição Lote de terreno para Twin Villa - 3 frentes no condomínio Quinta Marques Gomes com projecto (para aprovação) - Condomínio reservado, Área do Lote 729m2 - T3 com 207m2 área habitável + 150m2 de cave Open space
Objectivo: Venda
Condição: Em Projecto
Tipo: Terreno
Distrito: Porto
Concelho: Vila Nova de Gaia
Freguesia: Canidelo
Classe energética
0
Detalhes
Geral
  • Água Canali. Rede pública
  • Electricidade
  • Extractores de fumos
  • Gás Canalizado - Natural
  • Intercomunicador
  • Roupeiros embutidos
  • Saneamento
  • Esgotos
  • Domótica
  • Arquitetura Contemporânea
Divisões
   Divisões    Área    Pavimento    Paredes    Tectos    Observações
   
Em redor
Natureza
  • Marina
  • Vista para Mar
  • Vista para Rio
  • Vista para Cidade
Classificação Zona
  • Residencial
Transportes/Vias Comunicação
  • Estacionamento público grátis
  • Paragem Autocarro
  • Transportes Públicos
Saúde e Segurança
  • Esquadra de Polícia
  • Farmácia
  • Serviço de Urgências
  • Hospital Privado
Educação
  • Escola (Não Especificado)
Zonas Comerciais
  • Centro Comercial
  • Hipermercado
Serviços
  • ATM Multibanco
Conforto e Lazer
  • Areas de lazer infantil
  • Cinema
  • Ginasio
  • Restaurantes
  • Iates
Turístico
  • Passeios barco
  • Caves
Infra-estruturas
Geral
  • Condomínio Fechado
  • Garagem fechada
  • Jardim
  • Segurança do condominio
Conforto e Lazer - Comum
  • Parque infantil
Domótica
Segurança
  • Detecção de incêndio
  • Detecção de intrusão
  • Detecção de inundação
  • Portão garagem automático
  • Alarme (Não Especificado)
Energias Renováveis
Não existem dados desta categoria.
Estacionamento 4
Exclusivo
Área Terreno m2 729
Área Útil m2 207
Localização do Imóvel
A geo-referênciação apresentada reflete apenas a localização aproximada do imóvel.

Interessado neste imóvel?

   
  
   
 
Estes imóveis também poderão interessar
  • REF.:QMG66 Garden Villas
    Terreno
    Vila Nova de Gaia, Canidelo
    Lote de terreno para moradia térrea de 4 frentes no setor das Garden Villas, no...
    385.000 €
    Venda / Em Projecto
  • REF.:Lote 1.5
    Lote de Terreno
    Vila Nova de Gaia, Canidelo
    N/D
    275.880 €
    Venda /
x
Warning  O seu navegador está desatualizado, possui falhas de segurança e pode apresentar problemas a exibir este e outros websites. Resolver Agora

Trocando para um navegador mais atual tem várias vantagens:

Segurança
Navegadores atualizados protegem-no melhor contra fraudes, vírus, trojans, phishing, e outras ameaças!

Velocidade
Todos os navegadores da nova geração melhoram a velocidade

Compatibilidade
Sites que utilizam novas tecnologias serão melhor apresentados

Conforto & experiência mais rica
Com novas funcionalidades, extensões e melhor personalização, você terá uma melhor experiência ao navegar na web

Atualizar é fácil, toma poucos minutos e é totalmente gratuito. Navegadores desatualizados são uma ameaça à segurança e estão dificultando o avanço da web por causa das suas limitações e muitos problemas de funcionamento.

"Eu não tenho permissão para atualizar meu navegador"
Se você está em um computador, que é mantido por um administrador e você não pode instalar um novo navegador, fale com seu administrador sobre isso. Se você não pode mudar de navegador por causa de problemas de compatibilidade, tente instalar um segundo navegador, e manter o antigo para garantir a compatibilidade.
Fechar
Ao navegar neste site, está a concordar com o uso de cookies.  Mais informações Aceitar