Escritório, Porto, Ramalde

3.200.000 €   /  Ref. CAM1010
Vídeos
Imagens
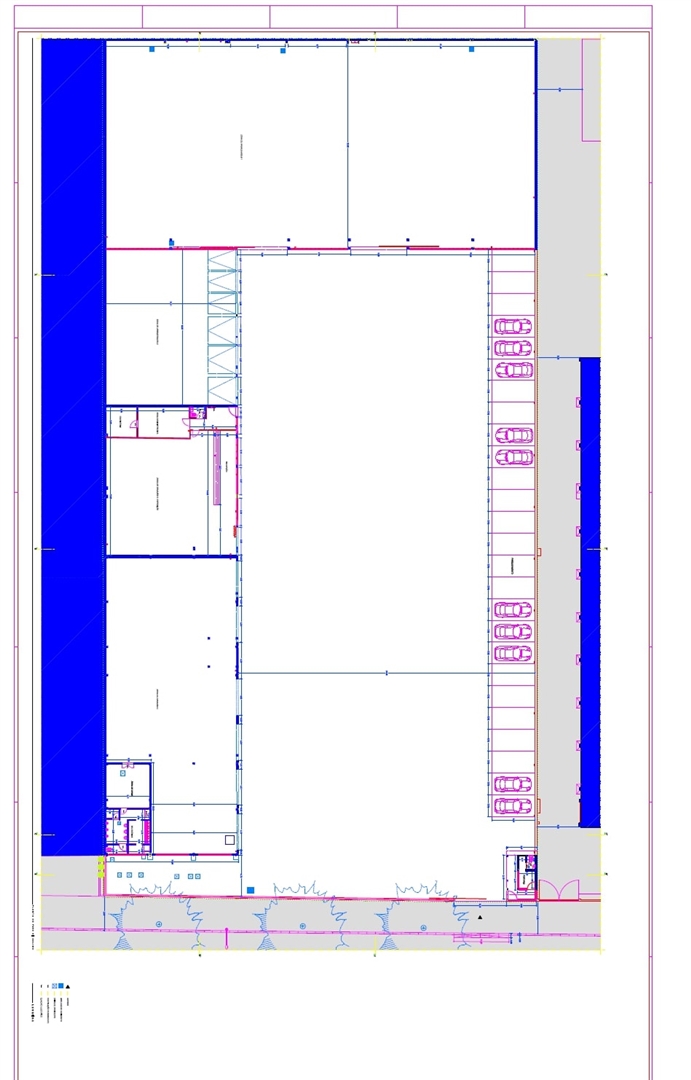
Descrição Terreno para construção Via Rápida com área de 5000 m2;
Capacidade construtiva de aproximadamente 7000 m2 de construção acima do Solo e 3000 abaixo do solo
Foi submetido um PIP á Camara Municipal do Porto em Novembro 2019.

Pelas suas características, este terreno é ideal para a construção de edificio de escritórios com espaços em Open Space ideais para empresas tecnológicas.

Está Localizado na Zona Industrial do Porto.

Proximo de:
- Transportes públicos á porta;
- 50 metros da Estação do Metro do supermercado continente com acesso ao Aeroporto Francisco Sá Carneiro e ao Centro da Cidade;
- 700 metros do Centro comercial NorteShopping;
- Acesso direto á VCI, Via Rápida , A 28, IC1;
Objectivo: Venda
Condição: Em Projecto
Tipo: Escritório
Distrito: Porto
Concelho: Porto
Freguesia: Ramalde
Zona: Zona Ind Porto
Classe energética
0
Detalhes
Geral
  • Electricidade
  • Iluminação Geral
  • Iluminação Exterior
  • Esgotos
Extras
  • Logradouro
  • Pátio
  • Terreno Murado
  • Arrecadação
  • Armazém
  • Arrumos
  • Entrada Para Camiões
  • Acesso a TIRs
  • Anexo
  • Cais Simples
Objectivo
  • Construção
  • Habitação
  • Comercial
  • Industrial
  • Diversão
  • Ginásio
Divisões
   Divisões    Área    Pavimento    Paredes    Tectos    Observações
   
Em redor
Natureza
  • Vista para Avenida
Classificação Zona
  • Comercial
Transportes/Vias Comunicação
  • Aeroporto
  • Auto estrada
  • Auto estrada nó de acesso
  • Estação de Metro
  • Via Rápida
  • Via Rápida nó de acesso
  • Paragem Autocarro
  • Terminal Rodoviário
  • Estacionamento (Não Especificado)
  • Transportes Públicos
Saúde e Segurança
  • Bombeiros
  • Centro de Saúde
  • Esquadra de Polícia
  • Farmácia
Zonas Comerciais
  • Centro Comercial
  • Hipermercado
  • Loja conveniência
  • Supermercado
  • Mercado
Serviços
  • ATM Multibanco
  • Cartório
  • Finanças
  • Serviços Públicos
Conforto e Lazer
  • Restaurantes
  • Fast Food
  • SPA
Infra-estruturas
Não existem dados desta categoria.
Domótica
Não existem dados desta categoria.
Energias Renováveis
Não existem dados desta categoria.
Área Terreno m2 5000
Área Útil m2 5000
Localização do Imóvel
A geo-referênciação apresentada reflete apenas a localização aproximada do imóvel.

Interessado neste imóvel?

   
  
   
 
Estes imóveis também poderão interessar
  • REF.:CAM1050
    Escritório
    Porto, Ramalde
    Loja/ Escritório que para ser reconvertido , junto a rotunda da Boavista ,...
    650.000 €
    Venda / Para remodelar
  • REF.:160905.01
    B-
    Apartamento  T3 DUPLEX
    Porto, Ramalde, Zona da Boavista
    Palacete de 1914, transformado em 2 magníficos apartamentos onde o luxo e a...
    Sob Consulta
    Venda / Remodelado
x
Warning  O seu navegador está desatualizado, possui falhas de segurança e pode apresentar problemas a exibir este e outros websites. Resolver Agora

Trocando para um navegador mais atual tem várias vantagens:

Segurança
Navegadores atualizados protegem-no melhor contra fraudes, vírus, trojans, phishing, e outras ameaças!

Velocidade
Todos os navegadores da nova geração melhoram a velocidade

Compatibilidade
Sites que utilizam novas tecnologias serão melhor apresentados

Conforto & experiência mais rica
Com novas funcionalidades, extensões e melhor personalização, você terá uma melhor experiência ao navegar na web

Atualizar é fácil, toma poucos minutos e é totalmente gratuito. Navegadores desatualizados são uma ameaça à segurança e estão dificultando o avanço da web por causa das suas limitações e muitos problemas de funcionamento.

"Eu não tenho permissão para atualizar meu navegador"
Se você está em um computador, que é mantido por um administrador e você não pode instalar um novo navegador, fale com seu administrador sobre isso. Se você não pode mudar de navegador por causa de problemas de compatibilidade, tente instalar um segundo navegador, e manter o antigo para garantir a compatibilidade.
Fechar
Ao navegar neste site, está a concordar com o uso de cookies.  Mais informações Aceitar