Apartamento T4 DUPLEX. Porto, Aldoar, Foz do Douro e Nevogilde

1.250.000 €   /  Ref. Dehaus D
Vídeos
Imagens
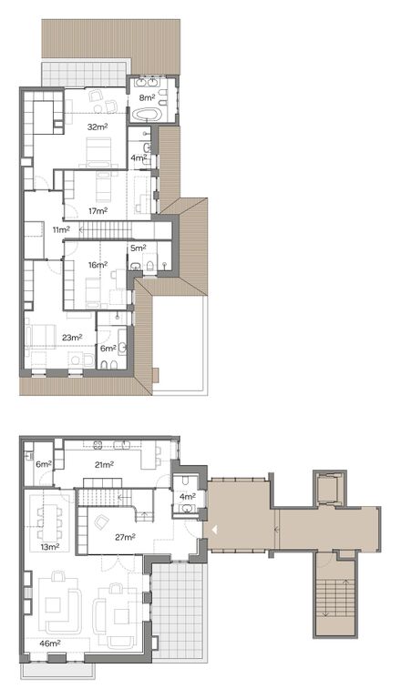
Descrição Localizado no Condominio Fechado Dehaus Garten Residenz. Com um hall de entrada sublime e a sua escadaria clássica são o cartão de visita desta habitação. Esta sensacional estrutura arquitetónica conduz a quatro quartos no piso superior. O pé direito duplo, com aberturas laterais, confere às áreas sociais uma luminosidade excecional. Na torre do palacete encontra-se inscrita a original casa de banho da ensolarada master suite com varanda orientada a sul.
Objectivo: Venda
Condição: Em Construção
Tipo: Apartamento
Tipologia: T4 DUPLEX
Distrito: Porto
Concelho: Porto
Freguesia: Aldoar, Foz do Douro e Nevogilde
Zona: Zona da Foz (Porto)
Classe energética
B
Detalhes
Geral
  • Água Canali. Rede pública
  • Gás Canalizado - Natural
  • Reservatório de Água
  • Roupeiros embutidos
  • Saneamento
  • Video Porteiro Cores
  • Porteiro
  • Iluminação Exterior
  • Iluminação Indirecta
  • Ventilação Mecânica
Isolamento Térmico/Acústico
  • Caixilharias: Aluminio/Aluminio
  • Estores Blackout
  • Vidros Duplos
  • Estores Eléctricos
  • Chão materiais isolantes
Extras
  • Varandas
  • Varandas Quartos
  • Varandas Sala
Aquecimento Central / Climatização
  • Aquecimento Central Gás
  • Caldeira Gás
  • Fogão de Sala
  • Piso radiante
  • Cilindro de Aquecimento
Instalações Sanitárias
  • Polibã
  • Extractor
  • Loiças Suspensas
Cozinha/Lavandaria
  • Despenseiro
  • Frigorífico
  • Lavandaria
  • Máquina lavar louça
  • Micro-ondas
  • Ilha
  • Moveis (Cozinha)
  • Moveis (Lavandaria)
  • Placa Vitrocerâmica
  • Exaustor em Campânula
  • Forno Eléctrico
Telecomunicações e Entertenimento
  • Som Ambiente - Pré Instal.
  • Fibra
Conforto e Lazer - Privativo
  • Sala de Jogos
Objectivo
  • Habitação
Divisões
   Divisões    Área    Pavimento    Paredes    Tectos    Observações
   
   Varanda    39 m2                
   Garagem Box    63 m2                
   Sala de Jantar    20 m2                
   Sala de Estar    56 m2                
Em redor
Natureza
  • Praia
  • Reserva/Parque natural
  • Vista para Lago
  • Vista para Jardim
  • Vista para Espaços Verdes
Classificação Zona
  • Residencial
Transportes/Vias Comunicação
  • Paragem Autocarro
  • Transportes Públicos
Saúde e Segurança
  • Centro de Saúde
  • Farmácia
Educação
  • Escola Ensino Secundário
  • Escola Primária
Zonas Comerciais
  • Lojas comércio tradicional
Serviços
  • Cartório
  • Correios
Conforto e Lazer
  • Areas de lazer infantil
  • Ginasio
Turístico
  • Igreja
Infra-estruturas
Geral
  • Acesso a pessoas com dificuldades motoras
  • Condomínio Fechado
  • Elevadores
  • Garagem fechada
  • Jardim
  • Aparcamento
  • Portas corta fogo
  • Segurança do condominio
  • Video-vigilância
Conforto e Lazer - Comum
  • Salão de condóminos
Domótica
Segurança
  • Alarme de pânico/emergência
  • Chaves de acesso configuráveis
  • Corte de fornecimento de água
  • Corte de fornecimento de gás
  • Detecção de fugas de gás
  • Detecção de incêndio
  • Detecção de intrusão
  • Detecção de inundação
  • Portão entrada automático
  • Portão garagem automático
  • Sinali. sonora/luminosa de alarme
  • Alarme (Não Especificado)
  • Detecçao de Fumos
  • Portão Eléctrico
  • Iluminação de Emergência
Gestão de Energia
  • Cenários de iluminação
  • Gestão de aquecimento
  • Luzes controladas
  • Sensores Eléctricos
Comunicações
  • Central Recepção de alarmes
Conforto
  • Armado por teclado auxiliar
  • Campainha de porta
  • Controlo estores motorizados
  • Funções por Rádio Frequência
  • Painéis tácteis ou alfanuméricos
Energias Renováveis
Aquecimento e Águas
  • Aproveitamento águas pluviais
  • Painéis Solares fixos
Produção de Energia Eléctrica
  • Painéis Solares fixos
  • Energia Solar
Outros
  • Frigoríficos
Estacionamento 3
Exclusivo
Área Útil m2 285

Interessado neste imóvel?

   
  
   
 
x
Warning  O seu navegador está desatualizado, possui falhas de segurança e pode apresentar problemas a exibir este e outros websites. Resolver Agora

Trocando para um navegador mais atual tem várias vantagens:

Segurança
Navegadores atualizados protegem-no melhor contra fraudes, vírus, trojans, phishing, e outras ameaças!

Velocidade
Todos os navegadores da nova geração melhoram a velocidade

Compatibilidade
Sites que utilizam novas tecnologias serão melhor apresentados

Conforto & experiência mais rica
Com novas funcionalidades, extensões e melhor personalização, você terá uma melhor experiência ao navegar na web

Atualizar é fácil, toma poucos minutos e é totalmente gratuito. Navegadores desatualizados são uma ameaça à segurança e estão dificultando o avanço da web por causa das suas limitações e muitos problemas de funcionamento.

"Eu não tenho permissão para atualizar meu navegador"
Se você está em um computador, que é mantido por um administrador e você não pode instalar um novo navegador, fale com seu administrador sobre isso. Se você não pode mudar de navegador por causa de problemas de compatibilidade, tente instalar um segundo navegador, e manter o antigo para garantir a compatibilidade.
Fechar
Ao navegar neste site, está a concordar com o uso de cookies.  Mais informações Aceitar